2024-12-06 18:49:47 0次
60多个涉案商标,超百家店铺被起诉!这些球队、乐队真让人头大啊!另外,健身器材专利也来凑热闹,已匿名TRO冻结!
01
EXERCISE EOUIPMENT 健身器材专利维权
案件号:24-cv-11897
立案时间:2024年11月19日
原告:Wei Shen
代理律所:RIMON P.C.
原告介绍
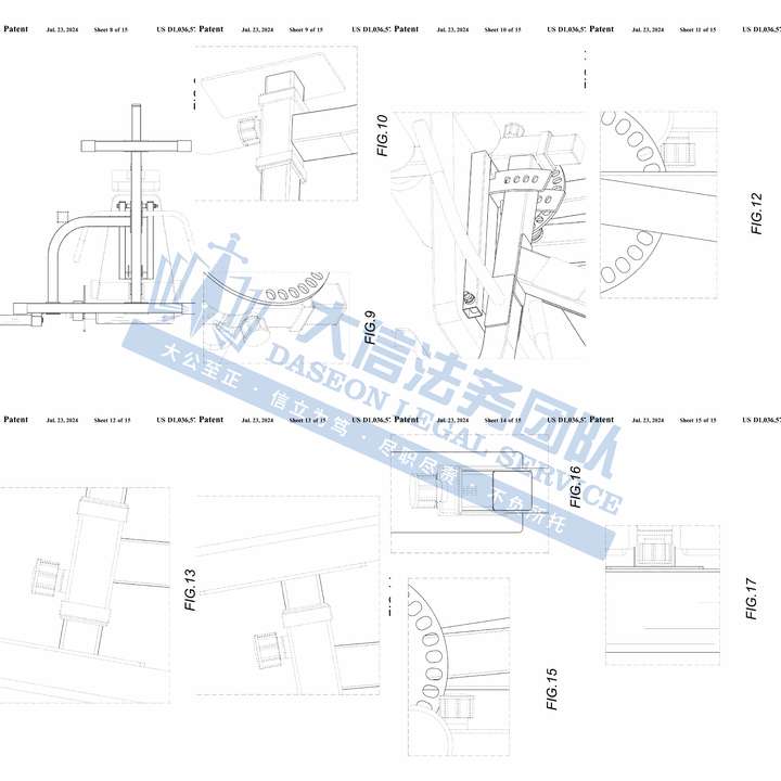
原告品牌为EXERCISE EQUIPMENT,品牌方为WEI SHEN,为国内某健身器材生产品牌。此案涉及的维权产品是腿部伸展训练机,采用先进的线性轴承和易于插拔的设计,能够无缝切换不同的锻炼模式,如腿部伸展、腿弯举和髋部推举,满足多样化的训练需求。无论是伸展还是弯曲动作,都能提供支撑与引导,利于突破训练瓶颈。这款可调节腿部伸展器材,是实现下肢力量升级、塑造体态的理想之选。

案件分析
此案是11月发起的隐匿专利维权案件,目前涉案账户已被TRO冻结,专利号为:D1036577,于2024年7月23日下证。下证即维权,注意,该专利为外观专利,只要外观相似,都有侵权风险,各位跨境卖家尽快检索下架!



案情进展

产品展示

02
NEW YORK KNICKS纽约尼克斯球队商标维权
案件号:24-cv-09167
立案时间:2024年12月3日
原告:MSG SPORTS, LLC, NEW YORK KNICKS, LLC, and NEW YORK RANGERS, LLC
代理律所:Csglaw
原告介绍
原告队是一支位于美国纽约州纽约市的职业篮球队,成立于1946年并加入美洲篮球协会(BAA,NBA的前身),是从最初的BAA联盟开始就没有搬迁过城市的两支球队之一(另外一支是波士顿凯尔特人队) ,现为美国男篮职业联赛(NBA)东部联盟大西洋赛区参赛球队。球队的主场是著名的麦迪逊广场花园(Madison Square Garden)。尼克斯是NBA最早的球队之一,也是联盟中最具文化象征性的队伍之一。球队的经典时期发生在1970年代,他们曾两次夺得NBA总冠军。

案件分析
此案为商标维权案件,目前该案件已经涉及100+店铺被告,跨境卖家在选品时一定要注意检索,避免造成侵权损失!售卖NBA周边纪念品的卖家,也要尽快排查下架!





产品展示

03
Metallica 乐队商标维权
案件号:24-cv-12401
立案时间:2024年12月3日
原告:Metallica, A California General Partnership
代理律所:TME
原告介绍
原告是一支来自美国加利福尼亚州。的传奇重金属乐队,成立于 1981 年,他们以高速、激烈的演奏风格和深刻的歌词闻名,是重金属音乐界的开创者之一,也是“Thrash Metal Big Four”(激流金属四巨头)之一。单曲《Enter Sandman》成为全球范围内的标志性作品。截至今日,已售出超过 1.25 亿张专辑,赢得包括格莱美奖在内的众多音乐荣誉。他们不仅是音乐界的顶尖艺术家,也是文化符号,影响了几代重金属音乐爱好者。

案件分析
此案为商标维权,原告旗下35个商标,维权关键词主要为:Metallica,注册品类涵盖众多,各位跨境卖家在选品时要注意检索,否则TRO侵权风险极高!






案情进展

产品展示

04
THE DIZZY GILLESPIE BIG BAND版权维权
案件号:24-cv-09215
立案时间:2024年12月3日
原告:THE DIZZY GILLESPIE BIG BAND
代理律所:Sanders Law Group
原告介绍
原告由爵士乐传奇人物Dizzy Gillespie创立,是全球最具影响力的爵士乐团之一。该乐队通过融合Bebop和Afro-Cuban音乐风格,不仅延续了Gillespie的音乐传统,还推动了爵士乐的发展。他们的演出致力于重现Dizzy Gillespie生前的经典作品,同时融入现代元素,吸引了全球的爵士乐爱好者。

案件分析
此案为版权维权,涉及一张版权图,除此之外,官网的图片未经授权均不可擅自使用,否则会有TRO冻结风险!

产品展示

我们始终坚信,法律服务没有捷径,容不得任何滥竽充数的行为。大信法务团队有中美资深律师,在美国TRO诉讼行业深耕多年,处理过上万起TRO侵权案,致力于为中国跨境电商卖家保驾护航!